Varias pessoas querem construir suas casas exatamente como sonham. Para que a casa saia perfeita, com todos os detalhes, é preciso que se faça uma planta antes de começar a construção. Parece fácil desenhar uma planta de casa, mas não é assim que funciona. Os modelos de plantas de casas devem ser projetadas de acordo com o espaço do terreno e uma série de detalhes que vamos explorar abaixo.
Separamos um guia completo com diversos modelos de plantas de casas grátis. Aproveite para encontrar a sua.
Os cômodos devem ser proporcionais ao tamanho. Por isso, para lhe ajudar, separamos 10 modelos de plantas de casas grátis para lhe inspirar e escolher a sua.
10 modelos de Plantas de Casas grátis
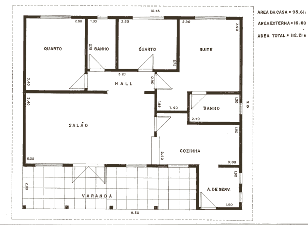
A planta de casa abaixo é o desenho de uma casa com dois quartos, uma suíte, um banheiro, uma sala e uma cozinha.
É uma comum, bem simples. O terreno usado para construir essa casa tem uma medida de 112,21 m2. A área da casa é de 95,61 m2 e a área externa de 16.60 m2.
Nessa planta, temos um modelo de casa menor. Essa casa possui uma área de 65,59 m2 e é composta por dois quartos, sala, cozinha, banheiro e varanda. Essa planta é para ser construída em um terreno com 75,92 m2.
Essa é uma planta de casa pequena, porém aparentemente aconchegante. Essa casa é composta por área de serviço, dois quartos, sala, cozinha e banheiro. A área total do terreno para construção dessa casa precisa ter pelo menos um pouco mais de 85 m2.
Esse outro desenho é um exemplo de planta com a simulação de todos os móveis em seus lugares. O bom dessa planta é que dá para ter uma ideia de onde todos os móveis poderão ficar.
Para quem procura uma casa maior e espaçosa, essa planta é um exemplo. Essa casa tem quatro quartos e uma área de serviço com churrasqueira.
Para uma casa com piscina, esse modelo é um exemplo. Essa casa é para ser construída num terreno com área total de 232 m2.
Outro desenho disponível é dessa casa com área total de 115.91 m2.
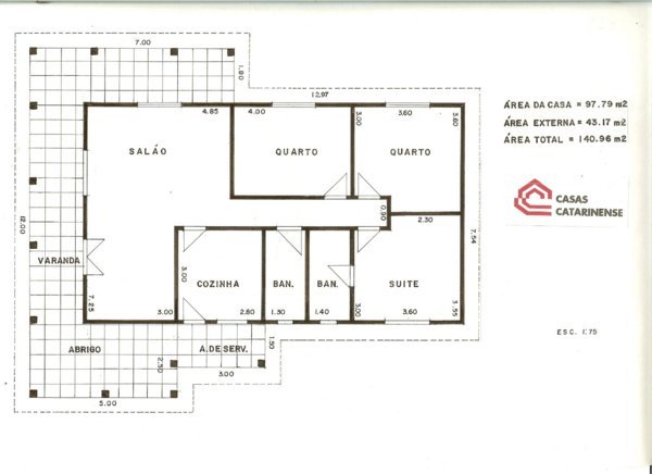
Mais um modelo de casa, aparentemente parecida com as outras, porém bem maior. Essa casa tem um área total de 97,75 m2 e é ideal que seja construída num terreno de 140,96 m2.
Para quem quer construir um sobrado, esse é um modelo de planta. As plantas estão divididas. De um lado temos a parte do térreo com dois quartos, sala, cozinha e banheiro. Na parte de cima temos mais dois quartos, dois banheiros e a varanda.
Por fim, uma casa bem simples e pequena, para um casal sem filhos. Essa casa tem somente um dormitório, sala, lavanderia, cozinha, banheiro e varanda.
Tipos de plantas para casas grátis
Há três tipos de plantas: a mais comum é aquela cujo desenho é feito com um corte horizontal com espessura de 1,5m a partir da base. Temos a planta alta que é pouco usada. Essa planta serve para mostrar a casa como se ela estivesse pronta, com a fachada e as paredes desenhadas da forma como irão ficar. E há a planta que estamos acostumados a ver, que é a projeção ou espaço arquitetônico.
É aconselhável que o desenho seja projetado por um engenheiro para que as medidas saiam em perfeitas condições. Porém, os desenhos que já estão prontos, podem servir de inspiração e referência.
Além disso, é de extrema importância que o engenheiro ou arquiteto mostre além da planta, mas também o projeto em 3D para que você possa visualizar como a casa vai ficar de fato, por isso, quando for fechar um projeto leve isso em consideração.
Construindo sua própria planta
Se nenhuma dessas plantas agradar, você pode desenhar a sua própria planta de casa grátis. Existem vários sites que permitem que qualquer pessoa possa criar a planta da sua casa da maneira que desejar.
Não se esqueça de procurar um engenheiro quando for registrar o seu imóvel ou até mesmo para que ele projete sua casa.













